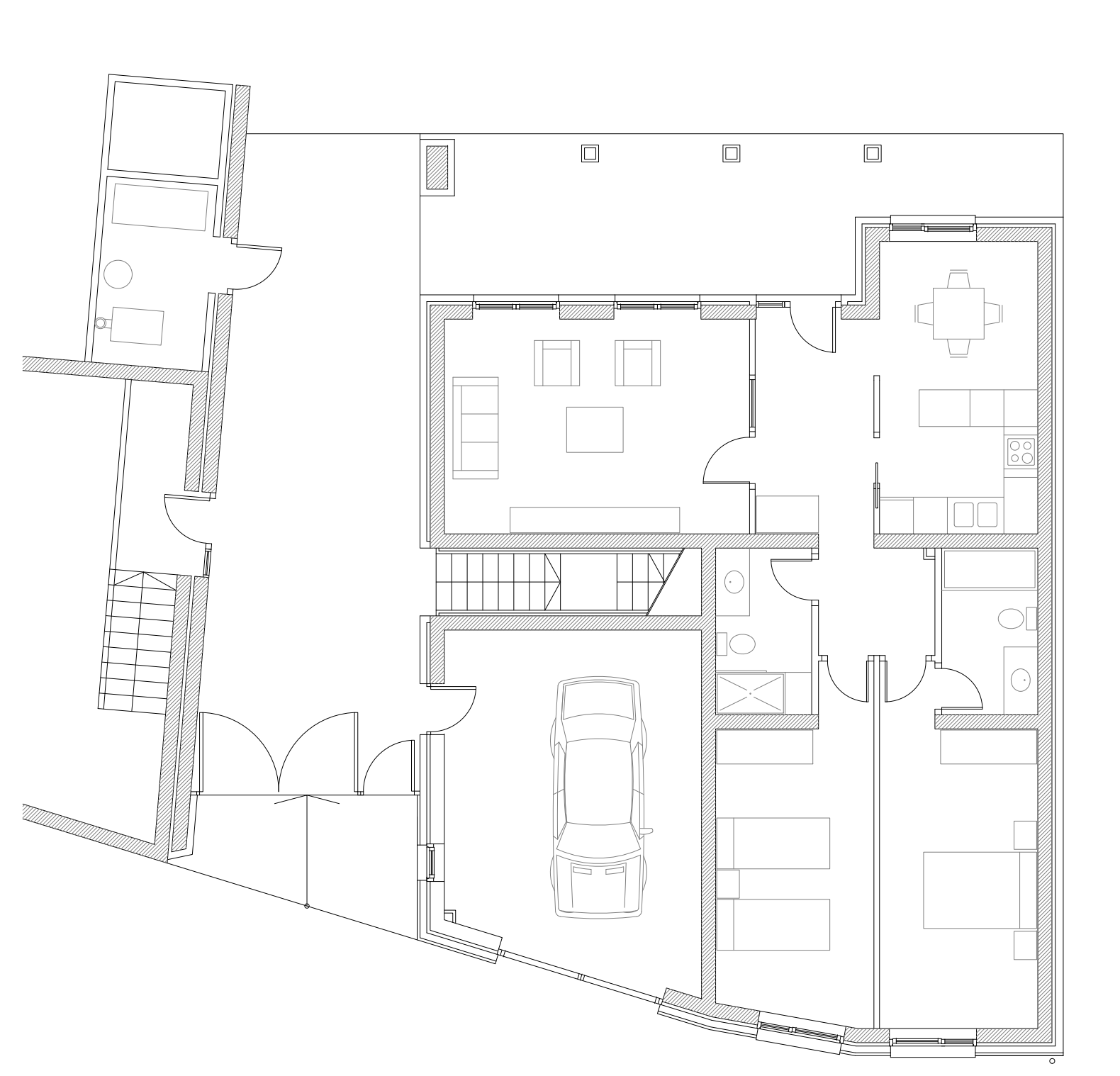
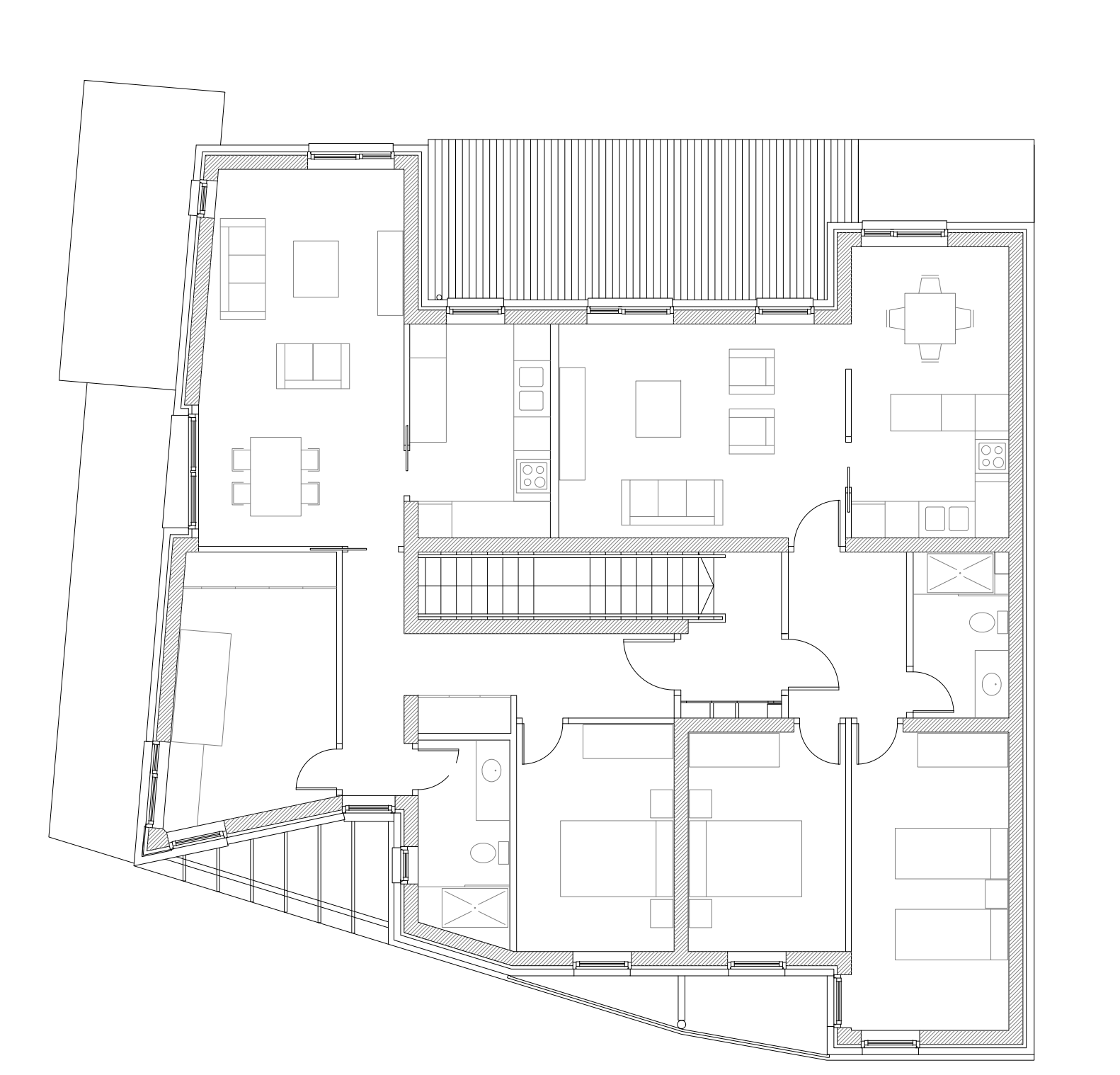
Edificio de tres apartamentos en santa Olaja del Porma (León)

Imágenes y planos