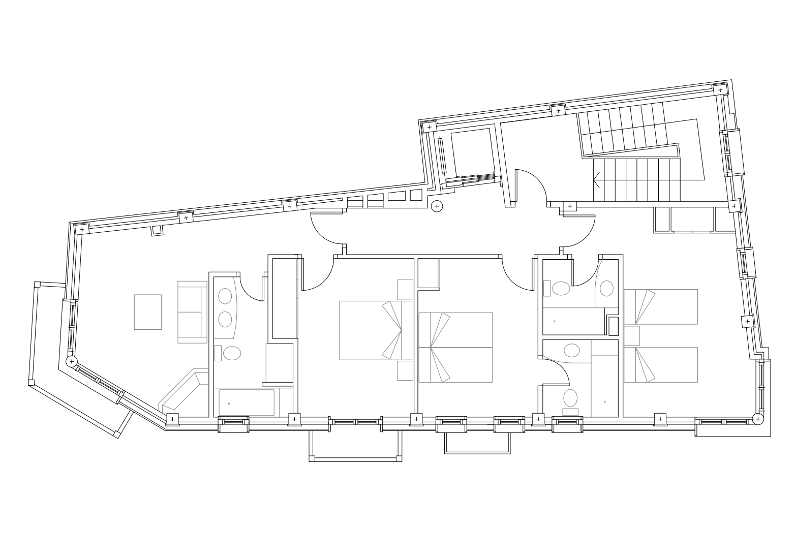
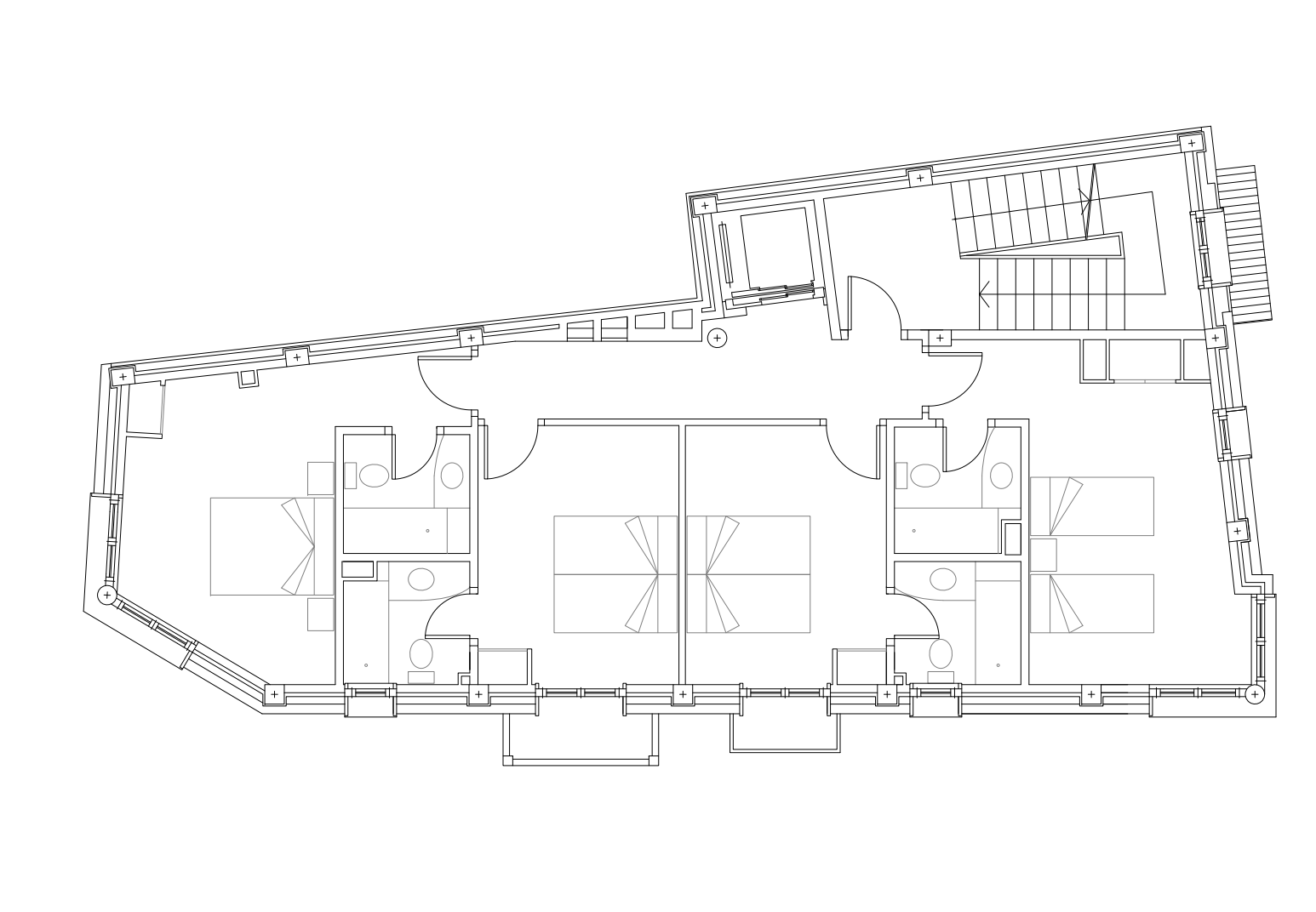
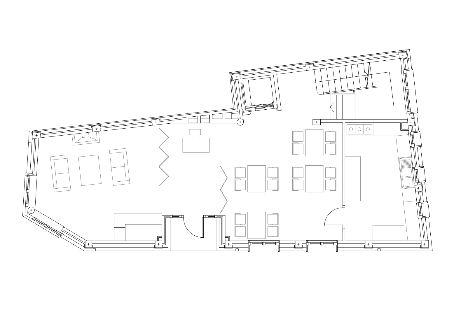
Centro de Turismo Rural “El Sabinar” en Crémenes (León)

Imágenes y planos